EDIFICIO SJ44 - SAN JUAN 2644 Y GARAY - SAN BERNARDO -ZONA CENTRO A METROS DEL MAR

direccion San Juan 2644, San Bernardo

volver Volver al listado
left
right
left
right

Venta

USD 15.000

  • Oportunidad
Codigo Código de propiedad: DJ001
  • Tipo de propiedad Departamentos
  • ambientes 1 Ambiente
  • toilet 1 baño
  • cama 1 Dormitorio
  • Orientacion Orientación Este
  • Anticipo y cuotas Anticipo y cuotas
  • Superficie cubierta Sup. cubierta 30m2
  • Superficie total Sup. total 30m2
  • Pisos 6 pisos
  • Antiguedad Antigüedad En construcción
  • Estado Estado Excelente

Acerca de la propiedad

EDIFICIO "SJ44"  -  SAN JUAN 2644  Y GARAY - SAN BERNARDO -ZONA CENTRO
EXCELENTE EDIFICIO EN SAN BERNARDO !!! EXPERIENCIA COMPROBABLE -
6 PISOS  - 14 UNIDADES FUNCIONALES ----*****MONOAMBIENTES, DOS AMBIENTES Y TRES AMBIENTES ****** AL FRENTE!!!!
VENTA AL POZO

DEPARTAMENTO DE 2 AMBIENTES 

A 150 mts DEL MAR , 80 mts DE LA PEATONAL CHIOZZA y 100 mts DE LA  AVDA. SAN BERNARDO

CON BALCON TERRAZA CON PARRILLA
DOBLE ORIENTACION ( ESTE AL FRENTE Y OESTE AL CONTRA FRENTE)
TODOS LOS AMBIENTES CON VENTILACION DIRECTA AL EXTERIOR
CONSTRUIDO CON MATERIALES DE 1° CALIDAD
COCHERAS OPCIONALES
ENTREGA PACTADA DICIEMBRE 2023!!!!!
FINANCIACION DIRECTA CON EL PROPIETARIO
(EL VALOR PUBLICADO CORRESPONDE AL ANTICIPO)

FORMA DE PAGO: ANTICIPO U$S15.500.- 30 cuotas de U$S 650.- ,  A LA POSESION U$S 10.000.- ( TOTAL VALOR DE INMUEBLE U$S 45.000.-)

VALOR  POR PAGO CONTADO U$S 35.000.-

ARMAMOS PLANES DE PAGO A MEDIDA DEL COMPRADOR

SE ACEPTA PERMUTAS !!!

CONSULTE FINANCIACION !!!

EXCELENTE ZONA !!!

100 METROS DE LA PEATONAL !!!

METROS DE ZONA GASTRONOMICA !!!

CON ASCENSOR 

PARRILLAS 

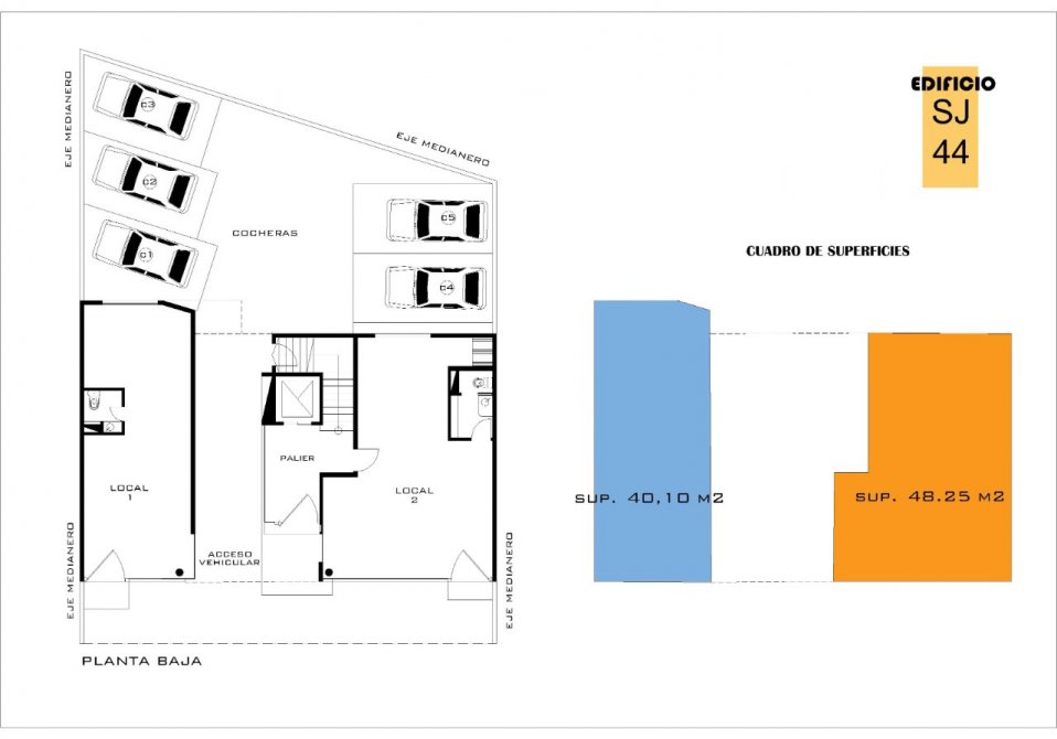
PLANTA BAJA 

DOS LOCALES COMERCIALES ( NO ESTAN A LA VENTA )
COCHERAS  OPCIONALES

1° PISO ( 2 UNIDADES FUNCIONALES ).

A ( 2 AMB )--------------------------------------  NO DISPONIBLE

B ( 3 AMB )  --------------------------------------NO DISPONIBLE

2°PISO ( 2 UNIDADES FUNCIONALES ).

A ( 2 AMB) SUPERF. 46,40 M2   -----------------NO DISPONIBLE

B ( 3 AMB) SUPERF. 60,90 M2  ------------------NO DISPONIBLE


3° PISO ( 2 UNIDADES FUNCIONALES ).

A ( 2 AMB) SUPERF. 46,40 M2 --------------------NO DISPONIBLE

B ( 3 AMB) SUPERF. 60,90 M2 --------------------NO DISPONIBLE

4° PISO ( 2 UNIDADES FUNCIONALES ).

A ( 2 AMB) SUPERF. 46,40 M2 ---------------------NO DISPONIBLE

B ( 3 AMB) SUPERF. 60,90 M2  --------------------NO DISPONIBLE

5° PISO ( 3 UNIDADES FUNCIONALES ).

A ( 2 AMB) SUPERF.46,40 M2--------------------------NO DISPONIBLE

B ( MONOAMBIENTE) SUPERF. 30,00 M2 CONTRAFRENTE--------- NO DISPONIBLE .-

C ( 2 AMB) SUPERF. 35,00 M2  ---------------------- U$D 35.000.-

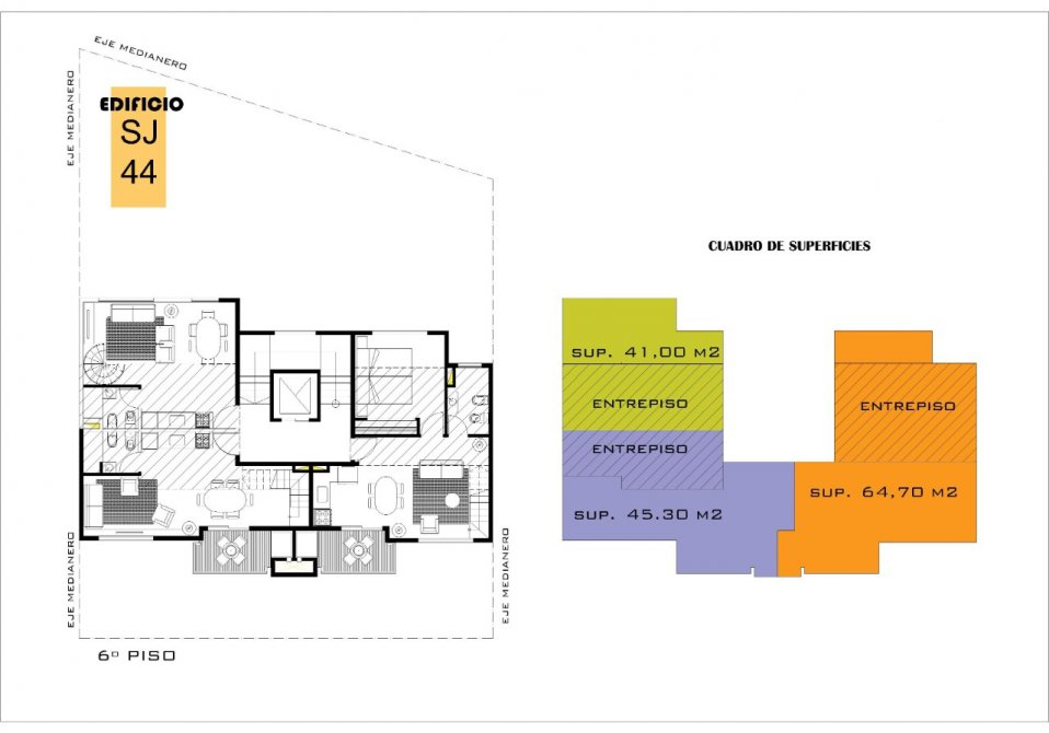
6° PISO ( 3 UNIDADES FUNCIONALES ).

A ( 3 AMB) SUPERF.67,00 M2  ------------------------NO DISPONIBLE

B ( 2 AMB.) SUPERF. 47,00 M2 AL FRENTE CON ESTACIONAMIENTO ---------------------- NO DISPONIBLE

C ( 2 AMB) SUPERF. 43,00 M2 CONTRAFRENTE ------------------------U$D 35.000

COMODIDADES:
COCINA.
ESTAR/ COMEDOR.
DORMITORIOS. ( CANTIDAD DEPENDIENDO DE LA UNIDAD FUNCIONAL)
ALTILLO ( DEPENDIENDO LA UNIDAD FUNCIONAL)
BALCON.( CON PARRILLA Y LAVADERO )
COCHERA OPCIONAL
LA PROPIEDAD SE ENTREGA CON ....
EXTERIOR:
PINTURA.
TANQUE DE AGUA.
PUERTAS DE ALUMINIO.
VENTANAS DE ALUMINIO.
VENTANALES DE ALUMINIO.
INTERIOR
PINTURA.
CERÁMICOS EN TODOS LOS AMBIENTES.
INSTALACIONES DE AGUA/ LUZ/ CLOACA Y GAS ( POR PUERTA)
AZULEJOS EN BAÑO Y COCINA.
GRIFERIA.
INODORO/BIDET/DUCHA.
MESADA/ B. MESADA.
TERMO TANQUE.
PUERTAS MADERA.
AVISO LEGAL: Las medidas y/o  superficies expuestas, como así también  las fechas de entrega de emprendimientos son aproximados y orientativos. Surgen de la información suministrada por el propietario o desarrollador. Denisa Ronconi inmobiliaria, no se responsabiliza por la exactitud de las mismas.
Para mayor información o coordinar una visita comunicarse con nosotros al whatsapp 2257403555

Comodidades

  • Cochera Sin cochera
  • Mascotas Acepta mascotas
Ver más

Ubicación

VIVÍ LA VIDA CON PROPIEDAD!

Servicio brindado por

buscadorprop

Todos los derechos registrados:

grupotodo
whatsapp Whatsapp email Contactar telefono Llamar
Chatea con nosotros whatsapp