COMPLEJO INTI VI UNIDADES DE CATEGORIA CON VISTA AL MAR EN COSTA AZUL

direccion Costanera 4300, Costa Azul

volver Volver al listado
left
right
left
right

Venta

USD 80.000

  • Destacado Destacado
  • Oportunidad
Codigo Código de propiedad: 268GP
  • Tipo de propiedad Departamentos
  • ambientes 3 Ambientes
  • Disposicion Disposicion Frente
  • Orientacion Orientación Este
  • Permuta Acepta permuta
  • Superficie cubierta Sup. cubierta 61m2
  • Superficie total Sup. total 71m2
  • Pisos 5 pisos
  • Antiguedad Antigüedad En construcción
  • Estado Estado Excelente

Acerca de la propiedad

DENISA RONCONI VENDE
Departamentos en Edificio Frente Al Mar en Costa Azul
- INTI VI
DEPARTAMENTOS 3 AMBIENTES Y 1 AMBIENTE - EDIFICIO DE 12 UNIDADES FUNCIONALES
EN COSTA AZUL ENTRE SAN BERNARDO Y LA LUCILA FRENTE AL MAR.
- CALLE COSTANERA AL 4300 ENTRE RIVADAVIA Y DUAHU
Venta en Pozo - Posesión
- INICIO DE OBRA SEPTIEMBRE 2024
- ENTREGA SEPTIEMBRE 2026
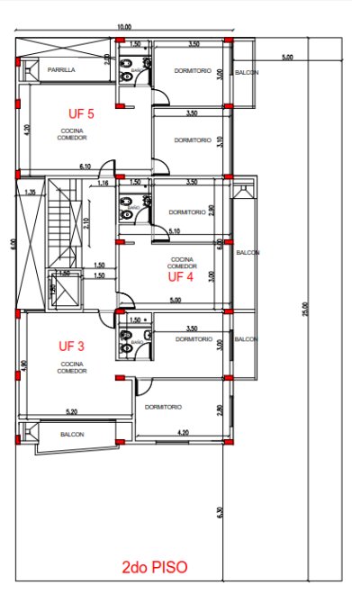
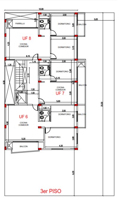
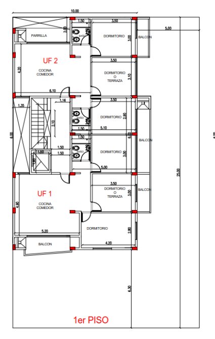
DEPARTAMENTOS DE, 5 (CINCO), 4 (CUATRO), 3 (TRES) Y 2 (DOS) AMBIENTES- EDIFICIO DE 11 UNIDADES FUNCIONALES EN COSTA AZUL ENTRE SAN BERNARDO Y LA LUCILA FRENTE AL MAR. - CALLE COSTANERA AL 4300 ENTRE RIVADAVIA Y DUAHU - ENTREGA OCTUBRE 2026 EL EDIFICIO “INTI VI” SE DESPLAZA EN UNA DE TORRE DE 5 PISOS, DEZPLASANDOSE DE LA SIGUIENTE FORMA: PRIMER PISO: 1)CUATRO AMBIENTES AL FRENTE, CON 72 M2 CUBIERTOS. CONSTA DE COCINACOMEDOR, TRES DORMITORIOS Y UN BAÑO, DOBLE BALCON DE 3M2 C/U PARA CADA HABITACION Y UN BALCON AL FRENTE CON PARRILLA Y LAVADERO MIRANDO AL MAR DE 5M2 , SUMANDO 11 M2 SEMI CUBIERTOS. TERRAZA COMPARTIDA DE 60 M2 2)CUATRO AMBIENTES AL FRENTE, CON 71 M2 CUBIERTOS. CONSTA DE COCINACOMEDOR, TRES DORMITORIOS Y 1 BAÑOS, DOBLE BALCON DE 3M2 C/U PARA CADA HABITACION Y UN BALCON AL CONTRA FRENTE CON PARRILLA Y LAVADERO DE 4M2 , SUMANDO 10 M2 SEMI CUBIERTOS. TERRAZA COMPARTIDA DE 60 M2 SEGUNDO PISO: 3) TRES AMBIENTES AL FRENTE, CON 56 M2 CUBIERTOS. CONSTA DE COCINACOMEDOR, DOS DORMITORIOS Y UN BAÑO,BALCON DE 3M2 DE UNA HABITACION Y UN BALCON AL FRENTE CON PARRILLA Y LAVADERO MIRANDO AL MAR DE 5M2 , SUMANDO 8 M2 SEMI CUBIERTOS. TERRAZA COMPARTIDA DE 60 M2 4) DOS AMBIENTES CON VISTA AL NORTE, CON 33 M2 CUBIERTOS. CONSTA DE COCINA-COMEDOR, UN DORMITORIOS Y UN BAÑO,BALCON DE 6M2 CON PARRILLA Y LAVADERO CON VISTA PARCIAL AL MAR DE 6M2 . TERRAZA COMPARTIDA DE 60 M2 5) TRES AMBIENTES AL CONTRA FRENTE, CON 55 M2 CUBIERTOS. CONSTA DE COCINA-COMEDOR, DOS DORMITORIOS Y UN BAÑO,BALCON DE 3M2 DE UNA HABITACION Y UN BALCON AL CONTRA FRENTE CON PARRILLA Y LAVADERO DE 4,5M2 , SUMANDO 7,5 M2 SEMI CUBIERTOS. TERRAZA COMPARTIDA DE 60 M2.-TERCER PISO: 6) TRES AMBIENTES AL FRENTE, CON 56 M2 CUBIERTOS. CONSTA DE COCINACOMEDOR, DOS DORMITORIOS Y UN BAÑO,BALCON DE 3M2 DE UNA HABITACION Y UN BALCON AL FRENTE CON PARRILLA Y LAVADERO MIRANDO AL MAR DE 5M2 , SUMANDO 8 M2 SEMI CUBIERTOS. TERRAZA COMPARTIDA DE 60M2 7) DOS AMBIENTES CON VISTA AL NORTE, CON 33 M2 CUBIERTOS. CONSTA DE COCINA-COMEDOR, UN DORMITORIOS Y UN BAÑO,BALCON DE 6M2 CON PARRILLA Y LAVADERO CON VISTA PARCIAL AL MAR DE 6M2 . TERRAZA COMPARTIDA DE 60 M2 8) TRES AMBIENTES AL CONTRA FRENTE, CON 55 M2 CUBIERTOS. CONSTA DE COCINA-COMEDOR, DOS DORMITORIOS Y UN BAÑO,BALCON DE 3M2 DE UNA HABITACION Y UN BALCON AL CONTRA FRENTE CON PARRILLA Y LAVADERO DE 4,5M2 , SUMANDO 7,5 M2 SEMI CUBIERTOS. TERRAZA COMPARTIDA DE 60M2 CUARTO PISO: 9) PEN-HOUSE CUATRO AMBIENTES AL FRENTE, CON 142 M2 CUBIERTOS. CONSTA DE COCINA-COMEDOR, LIVING, TRES DORMITORIOS Y DOS BAÑO, BALCONES EN TODOS LOS ANGULOS DE 3M2 C/U PARA CADA HABITACION SUMANDO 20 M2 SEMI CUBIERTOS Y UN QUINCHO CUBIERTO DENTRO DEL DEPARTAMENTO CON PARRILLA Y LAVADERO,. TERRAZA COMPARTIDA DE 60 M2 QUINTO PISO: 10)CUATRO AMBIENTES AL FRENTE, CON 75 M2 CUBIERTOS. CONSTA DE COCINACOMEDOR, LIVING, TRES DORMITORIOS Y UN BAÑO, DOBLE BALCON DE 3M2 C/U PARA CADA HABITACION Y UN BALCON AL FRENTE CON PARRILLA Y LAVADERO MIRANDO AL MAR DE 4,5M2 , SUMANDO 10,5 M2 SEMI CUBIERTOS. TERRAZA PRIVADA DE 25 M2 11)CUATRO AMBIENTES AL FRENTE, CON 72 M2 CUBIERTOS. CONSTA DE COCINACOMEDOR, LIVING, TRES DORMITORIOS Y 2 BAÑOS, DOBLE BALCON DE 3M2 C/U PARA CADA HABITACION Y UN BALCON AL CONTRA FRENTE CON PARRILLA Y LAVADERO DE 4,5M2 , SUMANDO 10,5 M2 SEMI CUBIERTOS. TERRAZA PRIVADA DE 50m2.-

VALORES Y FINANCIACION:
primer piso:

UF.1---U$D 95.000
UF.2---U$D 75.000 ultima valor pozo
segundo piso:
UF.3--- RE--SER--VA--DO
UF.4---VEN--DI--DO
UF.5---RE---SER---VA--DO
tercer piso:
UF.6 --RE---SER---VA--DO
UF.7 --VEN--DI---DO
UF.8--- U$D 80.000
cuarto piso:
UF.9--U$D 245.700
quinto piso:
UF.10- VEN---DI--DO
UF.11-U$D 129.080
ABONANDO DE CONTADO TENES UN 10% DE BONIFICACIÓN EXTRA.
LOS VALORES  DE LISTA YA INCLUYEN DESCUENTO POR COMPRA DE POZO, FINANCIANCIADO HASTA FINAL DE OBRA Y POSESIÓN.
FINANCIACION 36 CUOTAS CON 10% DE RECARGO EN EL PRECIO FINAL.
ANTICIPO Y CUOTAS A CONVENIR.
LOS VALORES PUBLICADOS SON CON ESPACIOS VEHICULARES DESCUBIERTOS DENTRO DEL COMPLEJO
TOMAMOS VEHICULOS EN PARTE DE PAGO
TAMBIEN TOMAMOS PESOS
SE ENTREGAN CON:
-PISOS DE PORCELANATO DE PRIMERA
-COCINA REVESTIDA.
-PLANOS APROBADOS PARA GAS NATURAL
-ABERTURAS DE ALUMINIO LINEA MODENA CON DVH
-MAMPARA EN LA DUCHA
-ESTRACTORES
-CAÑERIA DE GAS EN TERMOFUSION
-CAÑERIAS DE AGUA EN TERMOFUSION
-CAÑERIAS CLOACALES Y PLUVIALES CON AROS DE GOMA
-SANITARIOS MODERNOS DE PRIMERA LINEA
- GRIFERIAS DE PRIMERA LINEA
- ACCESORIOS EN LOS BAÑOS
- INTERIOR ACABADO CON ENDUIDO Y LATEX INTERIOR
-EXTERIOR CON DETALLES EN REVESTIMIENTO PLASTICO y PIEDRA NATURAL
-TODOS LOS SERVICIOS EN PUERTA A CONECTAR
-PERFORACIONES DE AGUA INDIVIDUALES
-MESADA, BAJO MESADA, ALACENA COMPLETA CON COBERTOR DE TERMO Y ESTRACTOR
- FRENTE DE PLACARD
-COCINA A GAS
- TERMOTANQUE ELECTRICO DE 50 LTS
-PRE INSTALACION PARA AIRE ACONDICIONADO EN TODOS LOS AMBIENTES ESPECIFICADOS EN ANEXO
-COMPLEJO CERRADO CON REJAS
-ASCENSOR DE ULTIMA GENERACION

Comodidades

  • Cochera cochera
  • Parrilla Con parrilla
  • Mascotas Acepta mascotas
  • Con vista al mar Con vista al mar
  • balcon Con balcon
  • Solarium Con solarium
  • Termotanque Con termotanque
  • Cerca del mar Cerca del mar
Ver más

Ubicación

VIVÍ LA VIDA CON PROPIEDAD!

Servicio brindado por

buscadorprop

Todos los derechos registrados:

grupotodo
whatsapp Whatsapp email Contactar telefono Llamar
Chatea con nosotros whatsapp